Gewerbegebiet »Gewerbegebiet Alt Wietmarschen« in 49835 Wietmarschen

Kein Bild vorhanden
Lage
49835 Wietmarschen
verfügbare Fläche
10 ha
Bauplätze
ab k. A. m²
Preis ab
10,00
Nutzung
--
Anbieter
Gemeinde Wietmarschen

Beschreibung

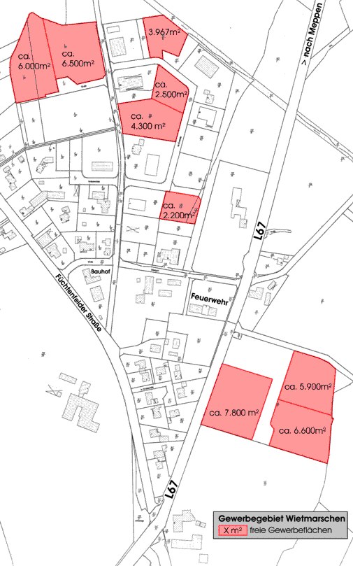
Die Gemeinde Wietmarschen kann im Ortsteil Wietmarschen Gewerbeflächen in einer Größenordnung von 5 ha anbieten. Es handelt sich um vollerschlossene und sofort verfügbare Grundstücke für Gewerbe- und Industrieansiedlung in nahezu jeder von Ihnen gewünschten Größe.

Informationen zu den Bauplätzen

Spezifische Angaben zu den einzelnen Grundstücken können wir aktuell noch nicht erteilen. Sobald die Grundstücksbildung abgeschlossen ist, wird Sie an dieser Stelle eine aktuelle Grundstücksdatenbank informieren.
Sie können jedoch schon jetzt eine allgemeine Anfrage zum Baugebiet an uns richten.
Anbieterinformationen

Gemeinde Wietmarschen

Hauptstr. 62
49835 Wietmarschen